

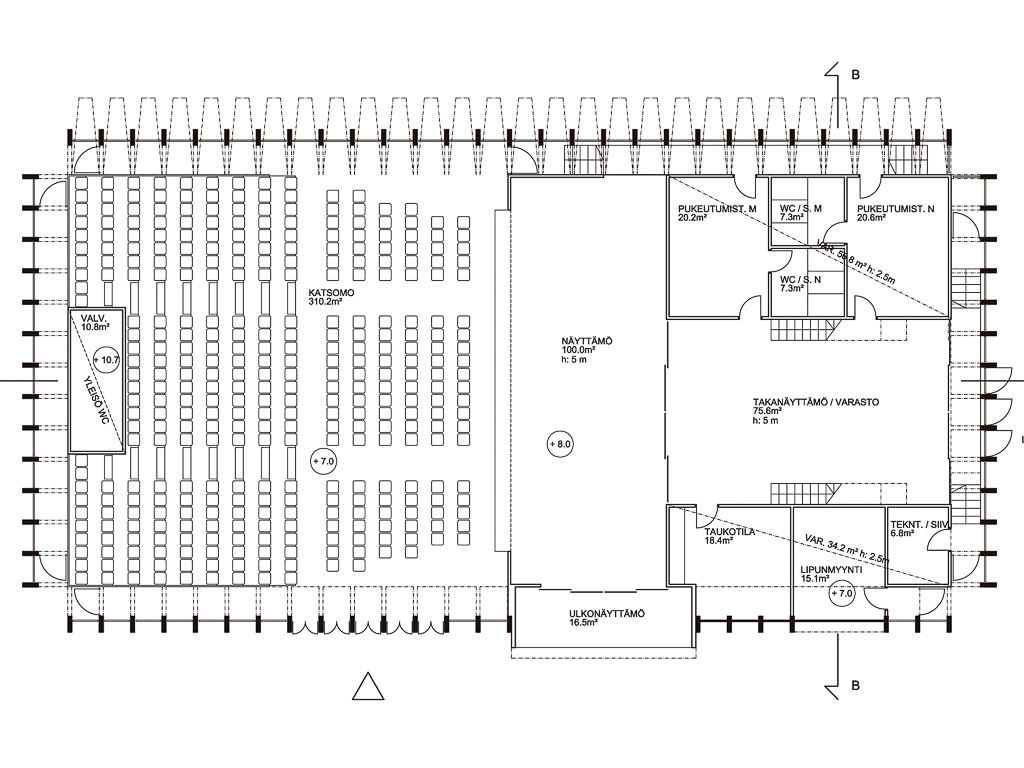
Concurso abierto organizado por el Ayuntamiento de Oulu para diseñar un pabellón cubierto para el Teatro de Verano de la ciudad. La propuesta consistió en un pabellón de estructura de madera con una forma de caja cuadrada claramente definida, en contraste deliberado con la naturaleza y el parque exterior. La solución incluía además un escenario secundario que podía abrirse al parque para acoger diferentes tipos de actividades. La propuesta fue premiada con una mención de honor y adquirida por la organización.









