

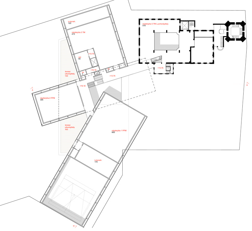
The proposal comprises three rectangular volumes that, together with the existing power plant building, form a varied and dynamic architectural ensemble. The historic water tower retains its role as an urban landmark within the old industrial landscape. The new volumes align with the axes of the existing masterplan, reinforcing the current urban layout and improving circulation routes. The museum complex is deliberately designed without a primary façade, making it welcoming and legible from all directions. The two-storey facades use a structural steel frame placed outside the exhibition spaces, giving precise control over acoustics and climate while allowing flexibility for varied installations. The double-skin facades also allow the building to glow like a lantern at night. The material palette draws on the brick of the surrounding factory buildings: the facades are clad with brick-red ceramic bars concealing either transparent or opaque glazing according to orientation. The entrance hall, by contrast, is lined with white-glazed ceramic bars, creating a deliberate transition from the industrial exterior to the light, neutral interior and the exhibition spaces beyond.















