

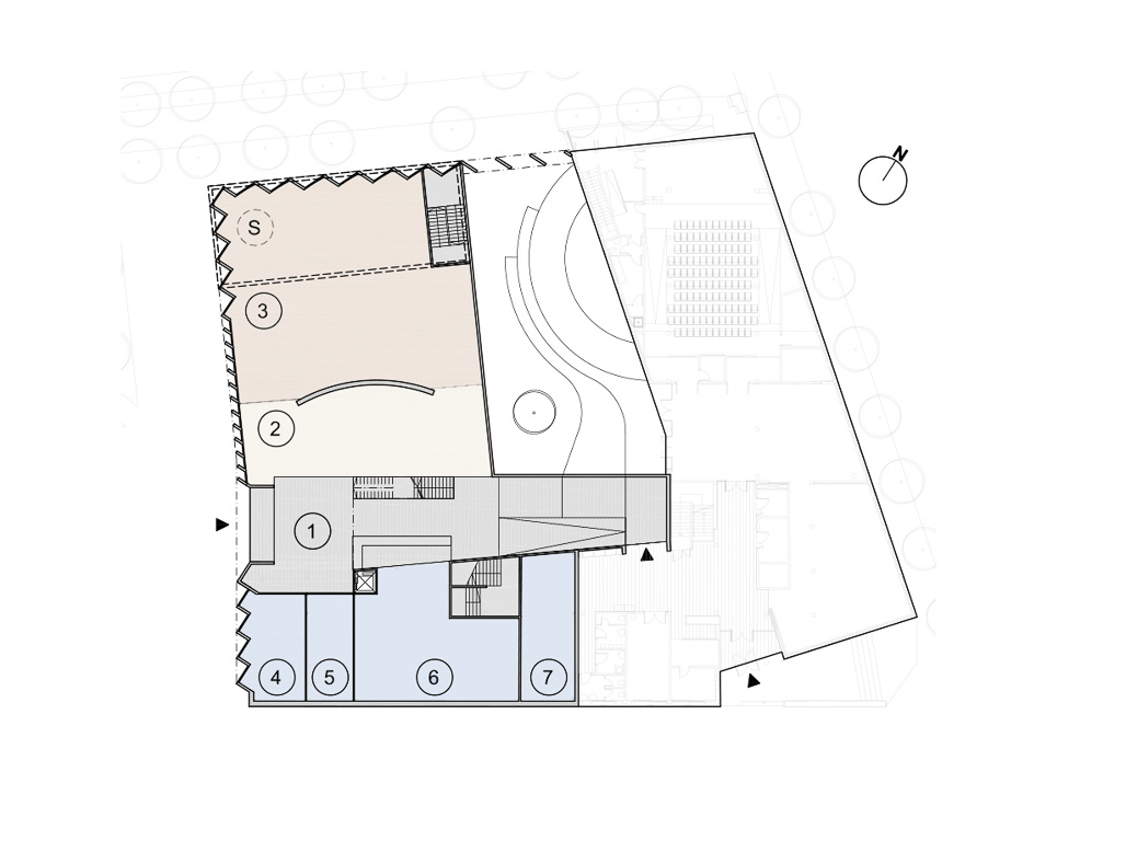
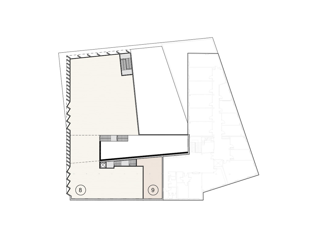
Concurso restringido para ampliar el edificio de la biblioteca en el centro de Olesa de Bonesvalls, en Cataluña. La propuesta preveía la demolición parcial del edificio existente para crear una nueva plaza central entre la biblioteca y el Ayuntamiento. La propuesta no fue seleccionada.















