

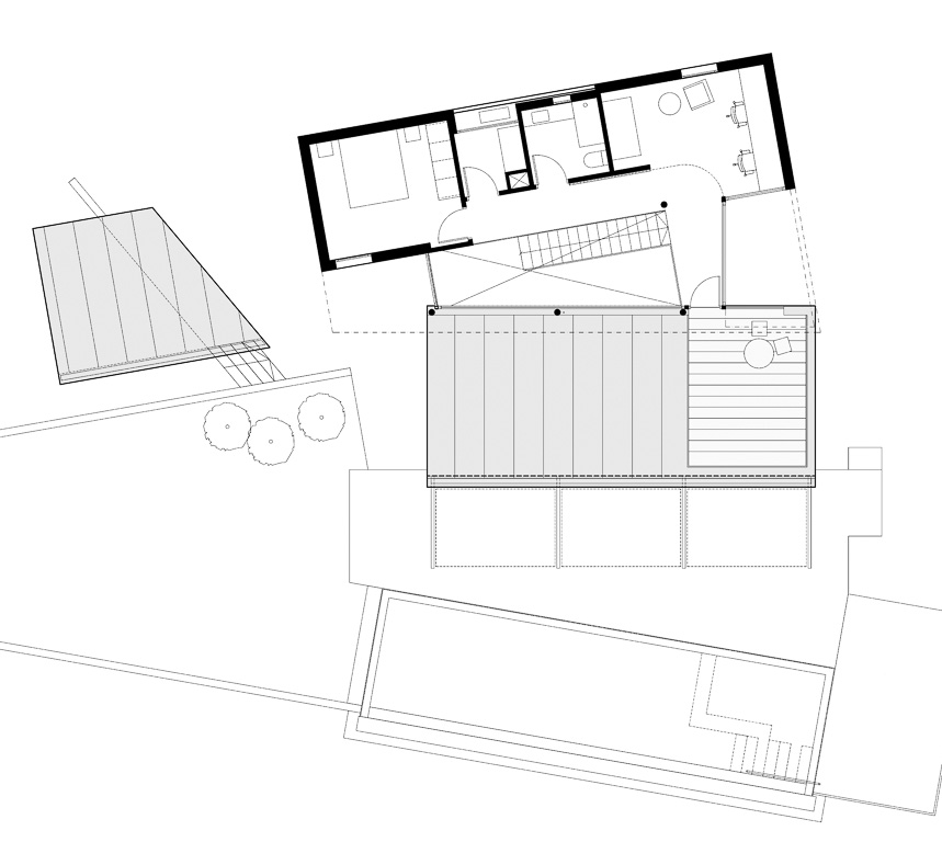
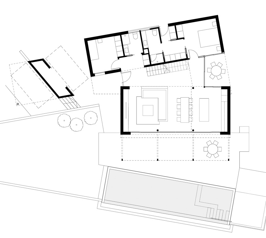
Casa unifamiliar con piscina en la cima de una colina con vistas al mar, para un cliente que trabaja principalmente desde casa. Los espacios se distribuyen en tres volúmenes con orientación diferenciada, para adaptarse mejor a la geometría del terreno. El volumen norte se desarrolla en dos plantas y alberga los dormitorios y el estudio —estancia de gran importancia para el cliente— en una posición privilegiada con vistas al mar. El volumen sur, de una sola planta y orientado al jardín y la piscina, contiene la zona de día. El volumen central es un doble espacio predominantemente acristalado que articula el conjunto.









































